ACCÈS ADHÉRENT
Fnaim-66
  • Accueil
  • Qui sommes-nous ?
  • Nos actualités
  • Nos Formations
  • Conseils juridiques
  • Nos adhérents
  • Nos Partenaires
  • Notre galerie
  • Devenir Adhérent
  • Nous contacter
VotreRecherche
Dans un rayon de
Budget min
Entre € et €
Entre
et
Min. €
Max. €
Surface
Entre m2 et m2
Min. m2
Max. m2
Pièces
Entre pièces et pièces
Min. pièces
Max. pièces
  1. Accueil
  2. Rodes
  3. Vente
  4. Terrain
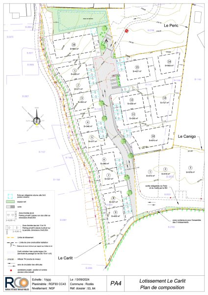
  5. 336m²
< Retour

Terrain
336 m²

Rodes - 66320

74 900 €
Descriptif du bien
Sur la commune de RODES (66), à 20 min de Perpignan, nous vous proposons ce terrain viabilisé de 336 m2, correspondant au lot 11 sur le Lotissement 'Le Carlit'. Ce lotissement est composé de seulement 16 lots. LOTISSEMENT ACHEVE donc possibilité de CONSTRUIRE DE SUITE Constructions imposées de PLAIN PIED afin de garantir la vue et l'intimité de chaque lot. Dans un cadre naturel privilégié, des aménagements de qualités sont prévus avec de nombreuses places de stationnement privatives afin d'éviter l'encombrement de l'espace public. Libres de constructeurs dernier lot encore disponible : -Lot 13 - 726 m2 - 109.900EUR
Détails du bien
  • Superficie (m²) 336
  • Code postal 66320

Diagnostic de
performances énergétiques

DPE
GES
Ce bien est proposé par
POLE HABITAT 66
POLE HABITAT 66
Voir les biens de l'agence
81, Avenue Du Haut Vernet
66430 Bompas
04 6 8 34 8 2 49
contact@polehabitat66.com
www.polehabitat66.fr
Nos outils
Nous contacter pour ce bien

* champs obligatoire

Les informations communiquées sont destinées à "Fnaim des Pyrénées Orientales" éditrice de ce site. Vous bénéficiez d'un droit d'accès, de modification, de rectification et de suppression de vos données personnelles (Loi n°2004-575 du 21 juin 2004 pour la confiance dans l'économie numérique). Pour les exercer, adressez vous à l’adresse de l’Editeur.

Partager ce
bien

Partager ce
bien

* champs obligatoire

Les informations communiquées sont destinées à "Fnaim des Pyrénées Orientales" éditrice de ce site. Vous bénéficiez d'un droit d'accès, de modification, de rectification et de suppression de vos données personnelles (Loi n°2004-575 du 21 juin 2004 pour la confiance dans l'économie numérique). Pour les exercer, adressez vous à l’adresse de l’Editeur.

Calculatrice financière
Mensualités :

* Champs obligatoires

Ces biens
peuvent vous intéresser

  • Vente
    Terrain 105m²
    66250 st laurent de la salanque
    30 000 €
  • Vente
    Terrain 1152m²
    66320 vinca
    149 000 €
  • Vente
    Terrain 1501m²
    66000 perpignan
    147 000 €
FNAIM

Notre top ville
en Pyrénées Orientales

  • Perpignan
  • Amelie Les Bains Palalda
  • Argeles Sur Mer
  • Le Barcares
  • Argeles Plage
  • Canet En Roussillon
  • Perpignan
  • Canet Plage
  • St Cyprien Plage
  • Port Vendres
  • St Cyprien
  • Alenya
  • Collioure
  • Ceret
  • Banyuls Sur Mer
  • Cabestany
  • Les Angles
  • Rivesaltes
  • Elne
  • Le Boulou
  • St Laurent De La Salanque
  • St Esteve
  • Font Romeu Odeillo Via
  • Thuir
Voir toutes les villes

FNAIM Pyrénées Orientales © 2026 | Tous droits réservés |

  • Plan du site
  • Mentions légales
  • Partenaires
  • Admin
  • Contact
Réalisé par
Les sites de la fédération : FNAIM Loire Atlantique, FNAIM Drome Ardeche, FNAIM Aix Marseille Provence, FNAIM Alpes Maritimes, FNAIM Vaucluse, FNAIM Alpes de Haute Provence - Hautes Alpes , FNAIM Var

Comme beaucoup, notre site utilise les cookies

On aimerait vous accompagner pendant votre visite. En poursuivant, vous acceptez l'utilisation des cookies par ce site, afin de vous proposer des contenus adaptés et réaliser des statistiques !

Paramétrer

Cookies fonctionnelsCes cookies sont indispensables à la navigation sur le site, pour vous garantir un fonctionnement optimal. Ils ne peuvent donc pas être désactivés.

Statistiques de visitesPour améliorer votre expérience, on a besoin de savoir ce qui vous intéresse !
Les données récoltées sont anonymisées.

?

Google Analytics

Annonces personnaliséesOn garde le contact ? Ces cookies nous permettent de vous proposer des contenus publicitaires adaptés à vos centres d'intérêts.

?

Google Ads

?

Facebook Pixel

?

Youtube

En savoir plus

Nous utilisons des cookies pour nous permettre de mieux comprendre comment le site est utilisé. En continuant à utiliser ce site, vous acceptez notre politique de confidentialité. En savoir plus